La Boutique de l'immo - ingrid guerin Agence
Vendu

Appartement 4 pièce(s) 3 chambre(s) 69 m²

Dijon (21000)
155 000 € Référence IG - 0022

A propos de ce bien

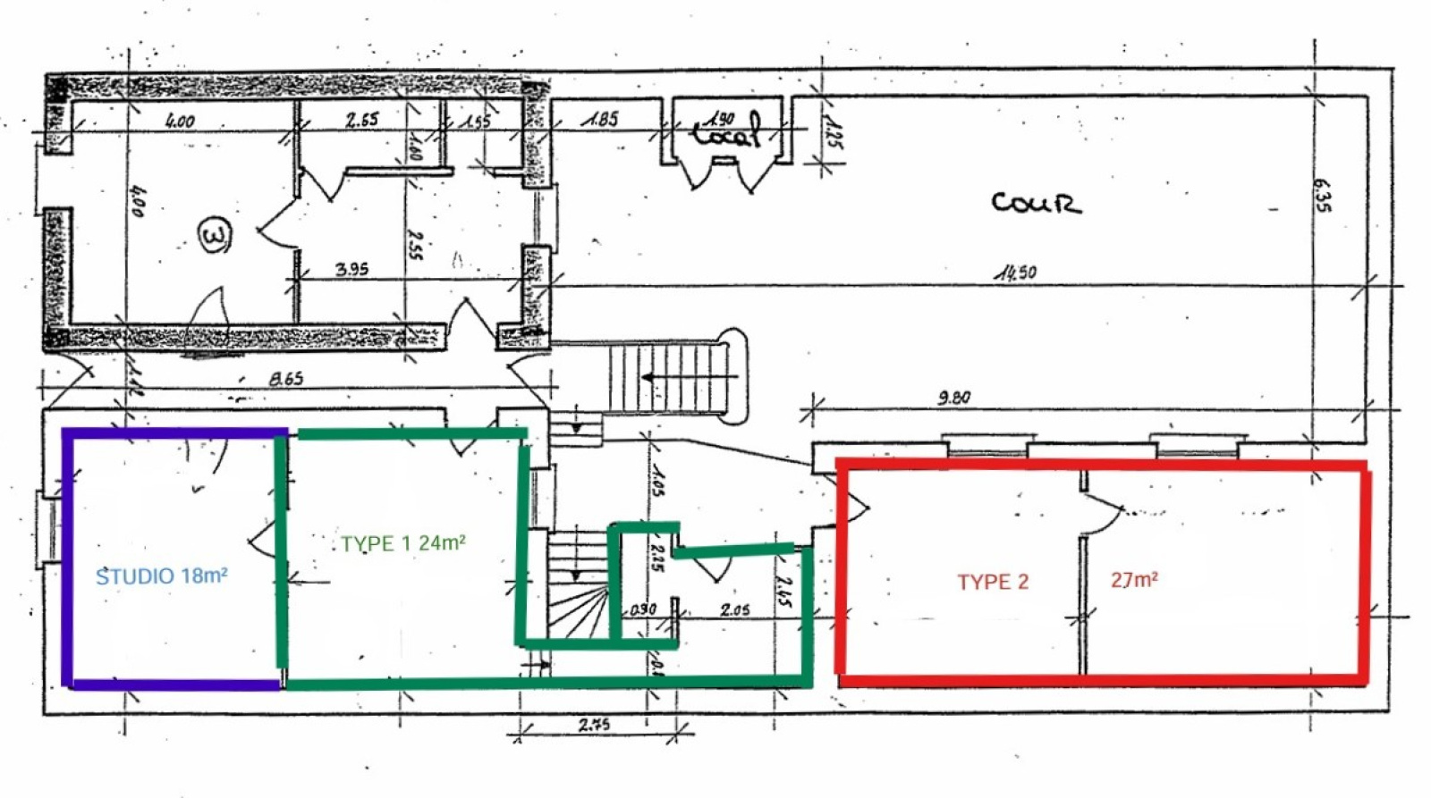
Spécial Investisseur : Lot de 3 Appartements à Rénover

Dans une petite copropriété ancienne idéalement située rue d'Auxonne, à proximité de la place Roger Salengro et des facultés, nous vous proposons à la vente un lot regroupant trois appartements à rénover intégralement, offrant un fort potentiel de valorisation.

Composition du lot :

  • Studio : environ 18 m²

  • Appartement de type 1 : 24 m²

  • Appartement de type 2 : 27 m²

Possibilité de joindre le studio et le type 1 pour créer un appartement de type 2 d’environ 42 m².

Les appartements sont équipés de double vitrage PVC ainsi que d’un compteur et d’un tableau électrique individuels. Deux caves complètent ce lot.

Cette offre représente une belle opportunité pour un investisseur souhaitant rénover et créer de la valeur sur un ensemble immobilier cohérent dans un secteur recherché.

Prix du bien : 155 000,00 € honoraires d'agence inclus (à la charge du vendeur).

Pour toute information ou pour organiser une visite, contactez : ingrid guerin conseillère immobilier LA BOUTIQUE DE L’IMMO.

Informations complémentaires :

Taxe foncière : 1 672 €

À propos de la copropriété :

Nombre de lots : 9

Charges prévisionnelles annuelles : 2 984 €

Aucune procédure en cours

Non soumis au DPE

Pour plus de renseignements ou pour organiser une visite, n'hésitez pas à nous contacter.

Caractéristiques de ce bien

  • Surface 69 m²
  • carrez 68,28 m²
  • 3 chambre(s)
  • 3 salle(s) d'eau
  • construit en 1900
  • kitchenette
  • Chauffage individuel : convecteur (electrique)
  • 2 étage(s)
  • cave
  • accès handicapé

Diagnostics énergétiques

Consommation énergétique
A B C D E F G
Emission de gaz à effet de serre
A B C D E F G
DPE non concerné

Informations financières

Prix de vente honoraires TTC inclus 155 000 €
Charges 248 €
Taxe foncière annuelle 1 672 €

Informations de copropriété

Copropriété Oui
Statut du syndic Pas de procédure en cours

Autour du bien

  • Commerces et santé
  • Loisirs
  • Ecoles
  • Transports
  • Pratique

Calcul des mensualités

* Champs obligatoires